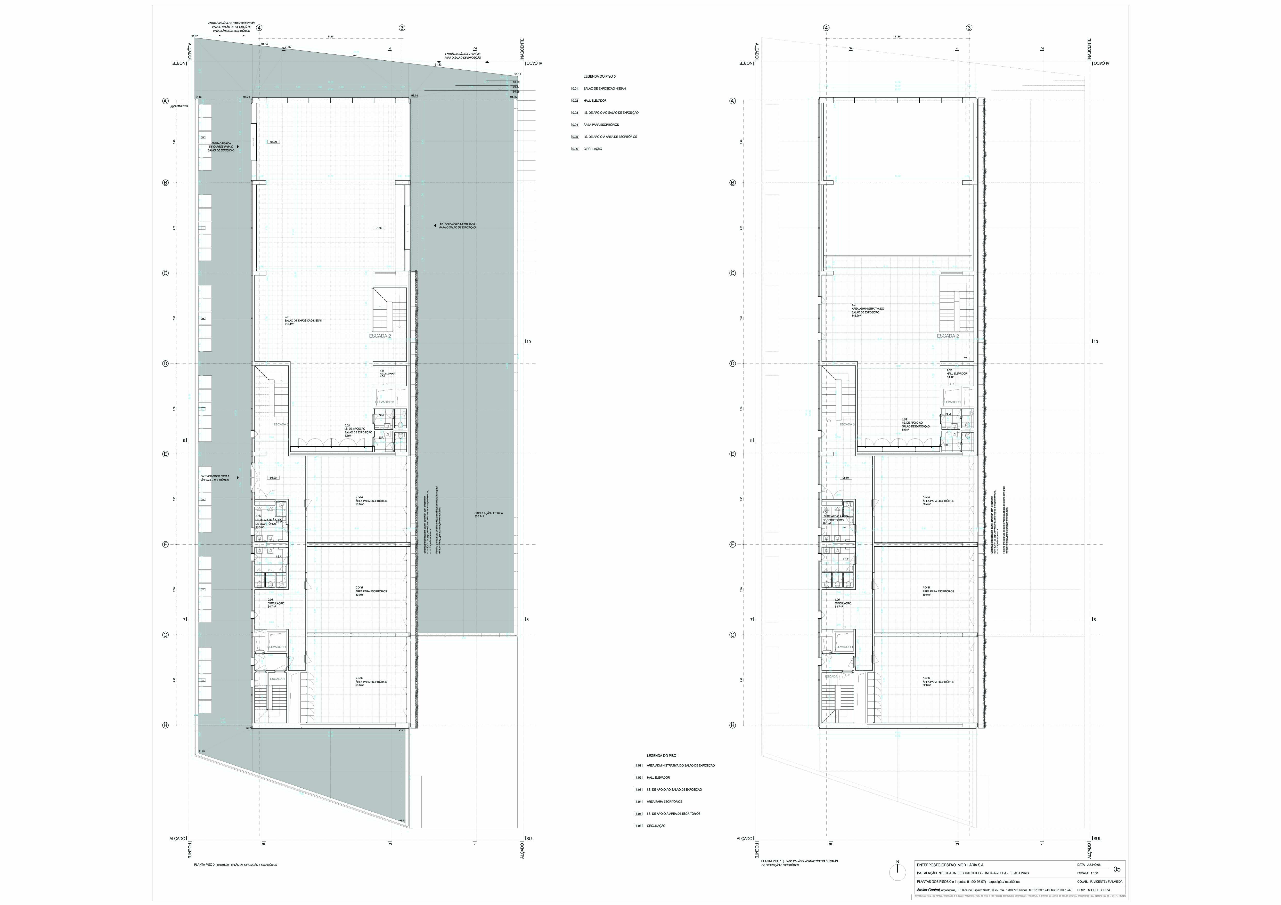
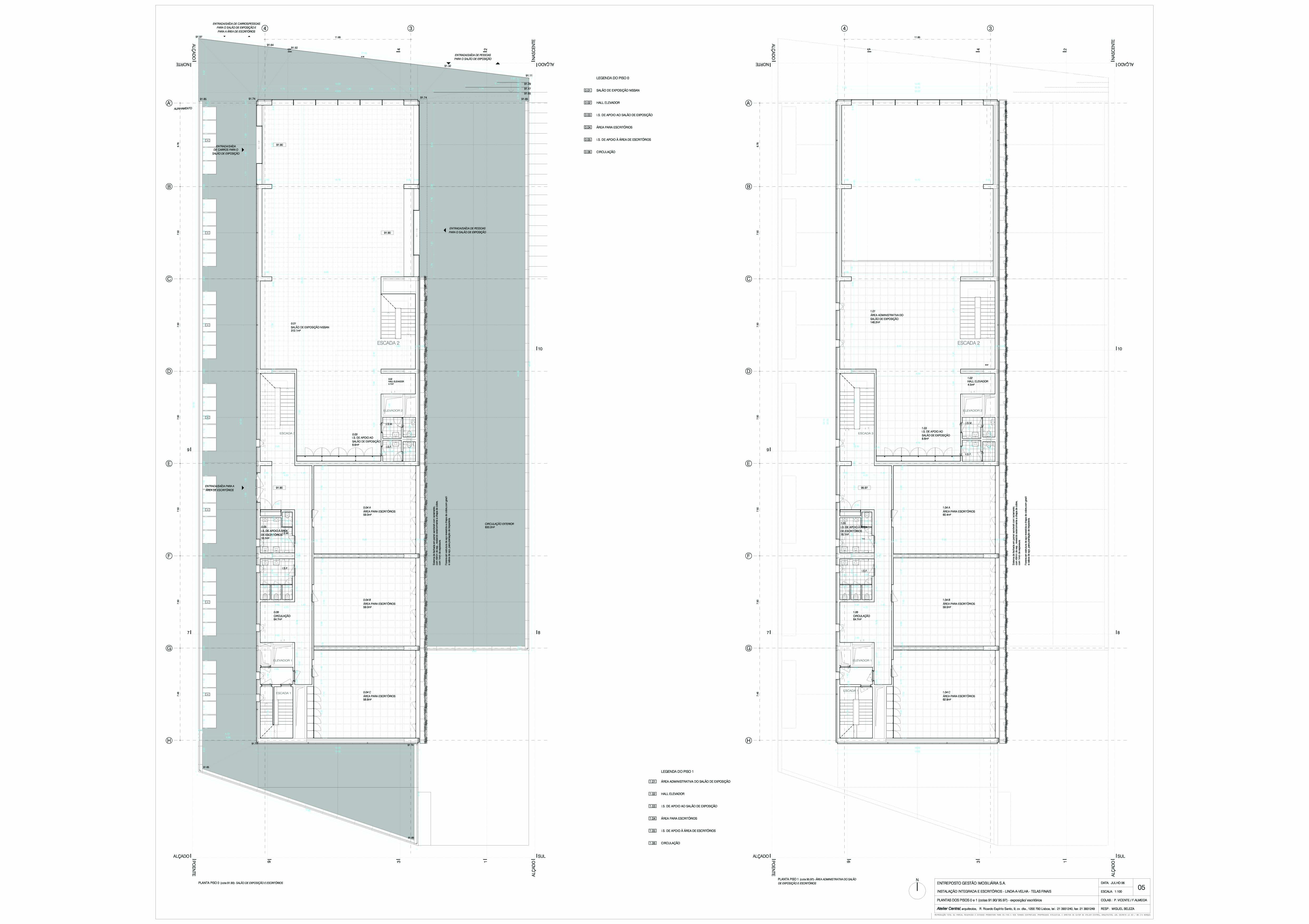
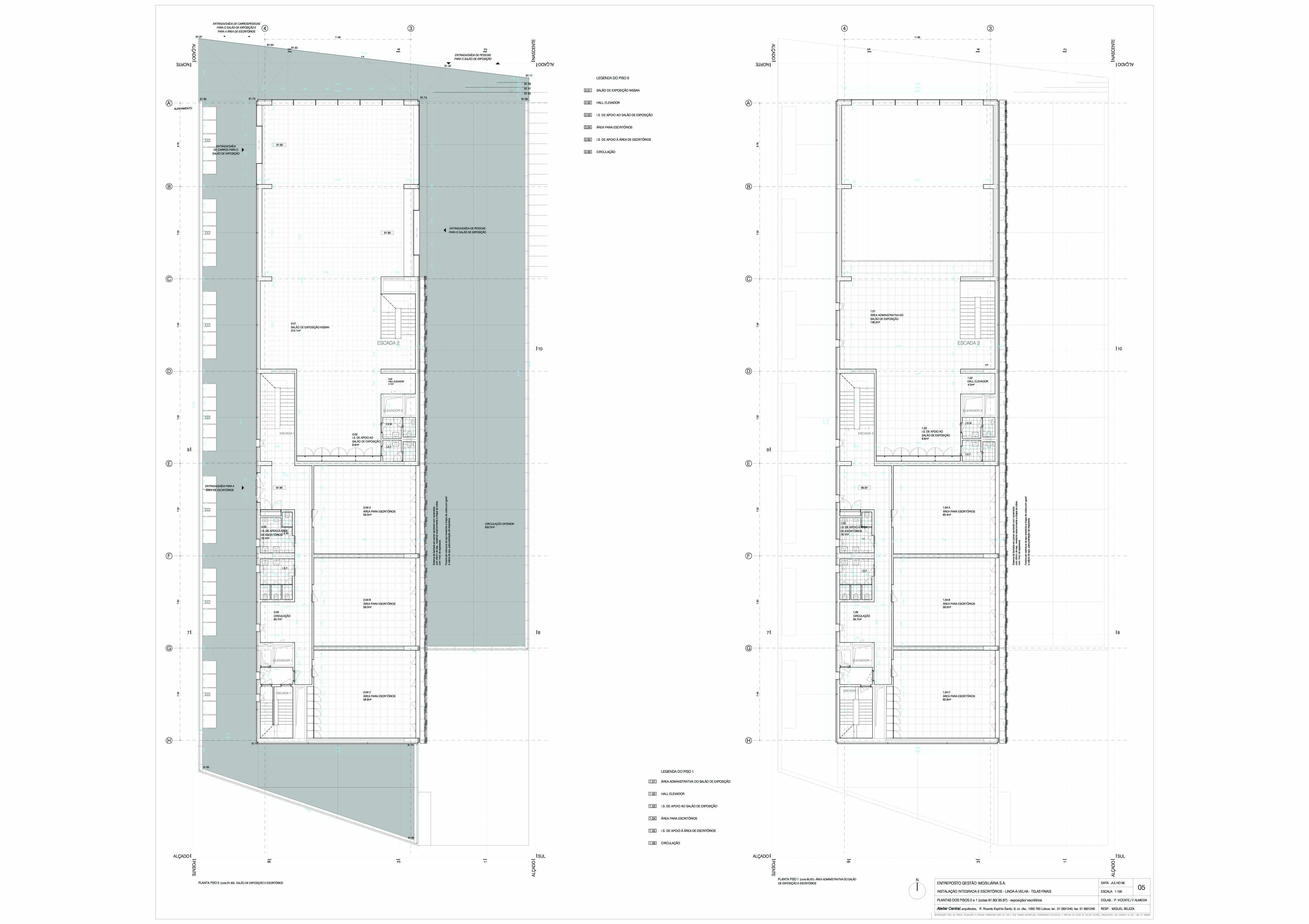
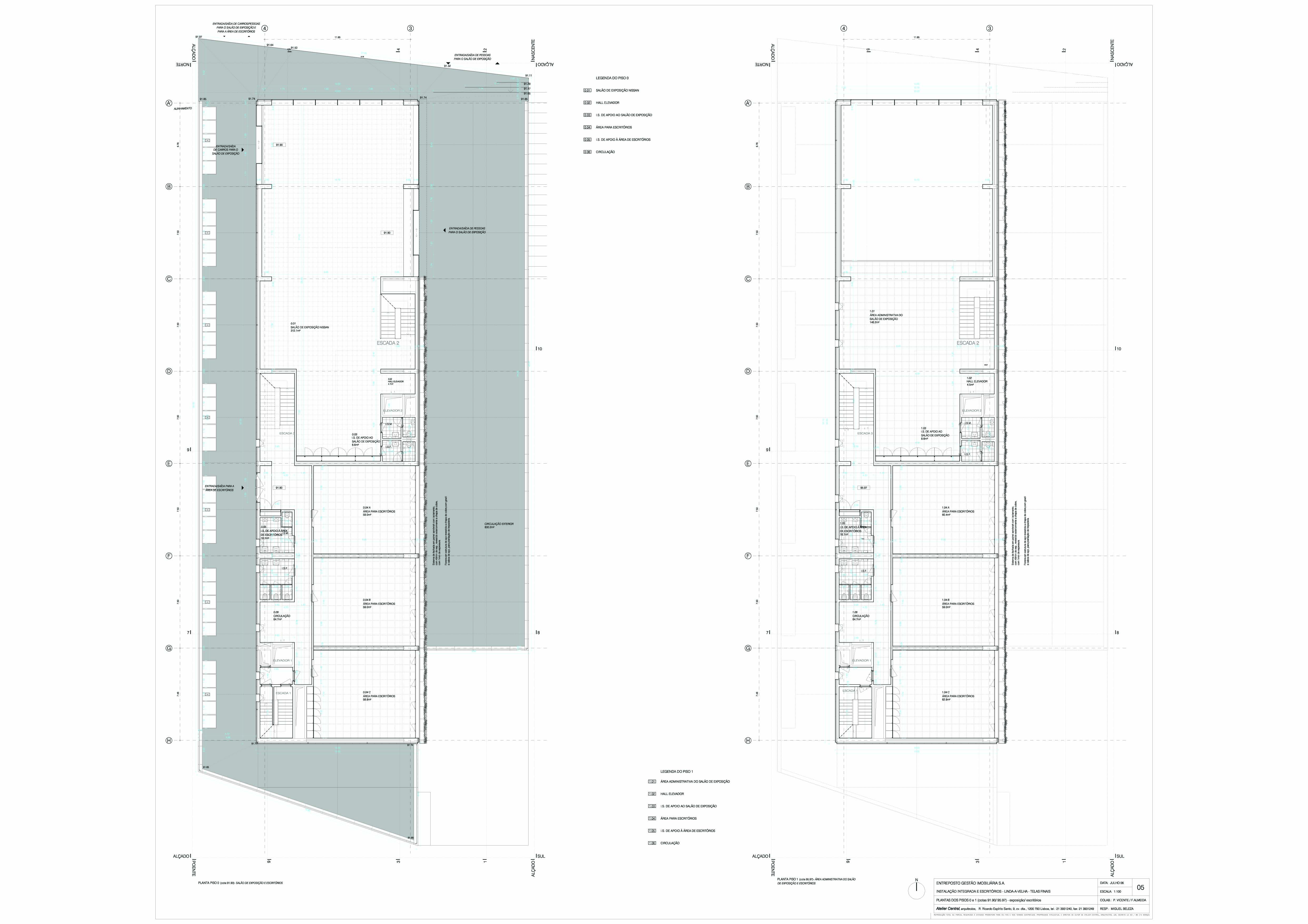
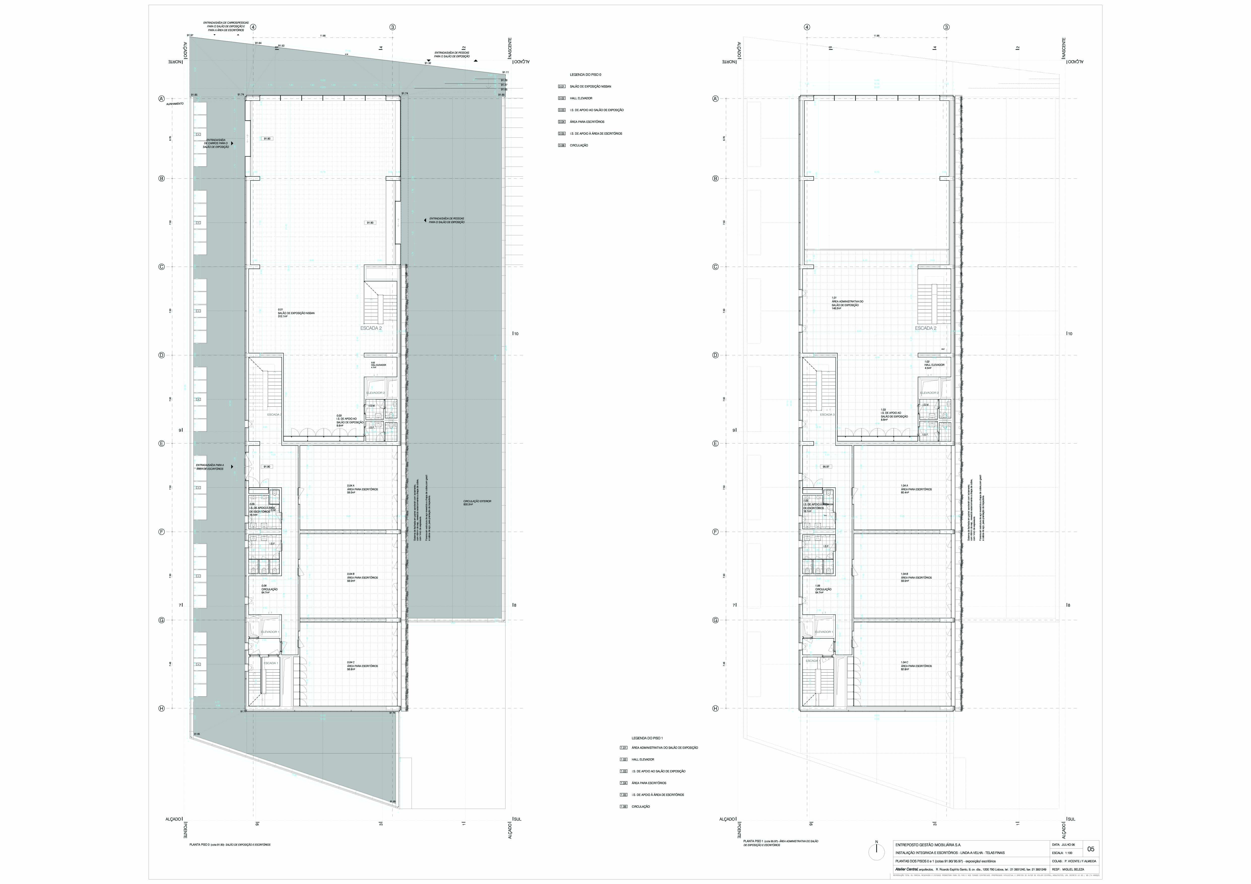
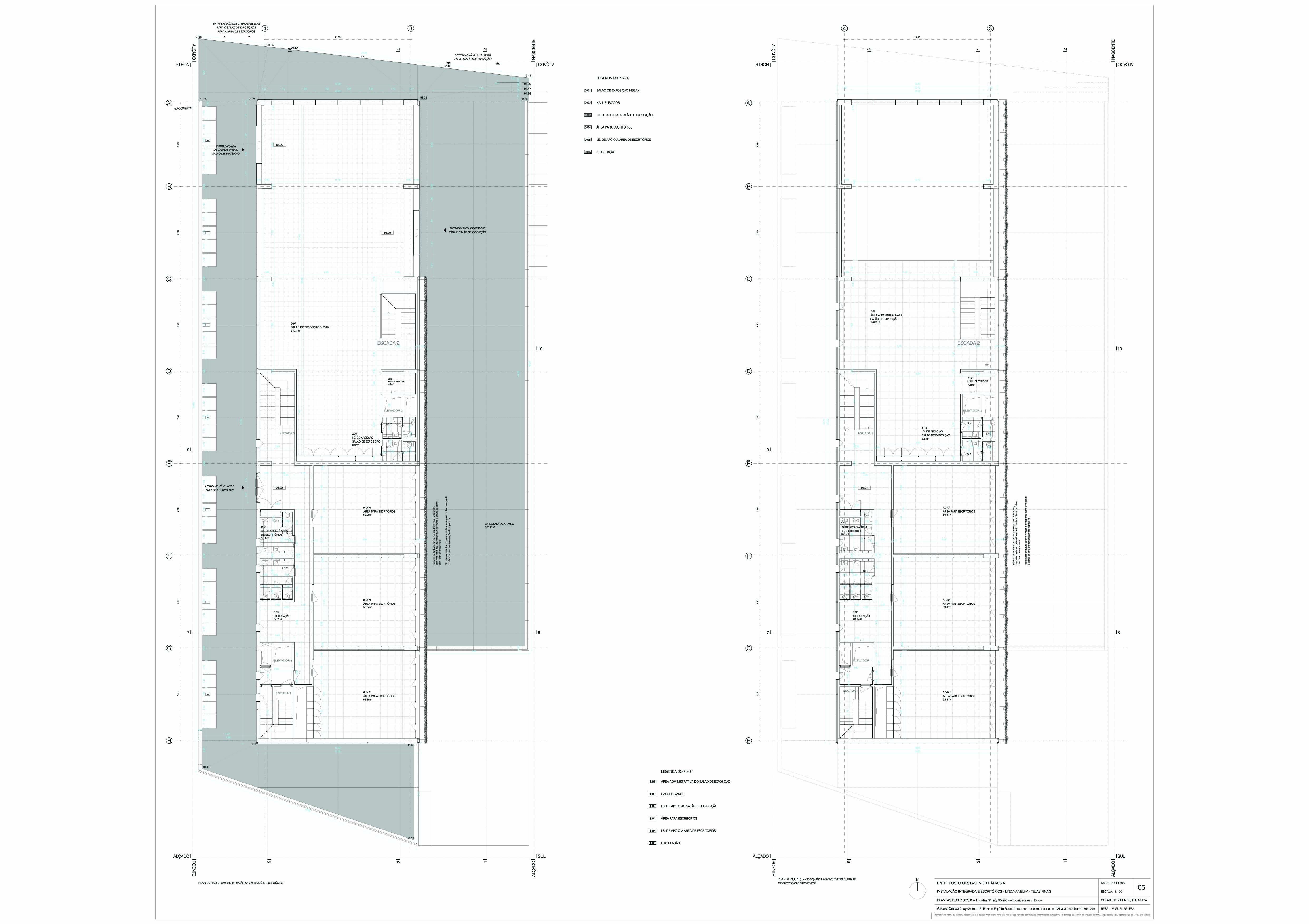
Office Building in Linda-a-Velha

Linda-a-Velha, Oeiras, Portugal

2002 - 2003

Date
2002

Construction Date
2003

Area
Renewed Construction Area: 403 Sqm

Team
José Martinez | Miguel Beleza | Patrícia Vicente | Pedro Vieria | Pedro Rodrigues 

Photography
FG + SG | Fernando Guerra